Более 10 лет на рынке

Проектирование и электромонтаж для жилых и коммерческих объектов

Профессиональное проектирование электрики и систем «Умный дом» — основа безопасности и надежности вашего объекта. Полный комплекс электромонтажных работ с гарантией качества и соблюдением сроков, расчет нагрузок.

Бесплатная консультация Вернуться к проектам
Проектная документация

Проект электроснабжения двухэтажного жилого дома 250 м²

Электроснабжение коттеджа - главное фото

1. СОДЕРЖАНИЕ ПРОЕКТА

Лист Наименование
1 Содержание
2 Ведомость рабочих чертежей основного комплекта
3 Ведомость ссылочных и прилагаемых документов
4 Общие указания
5 Краткая характеристика объекта
6 Основные технические решения

2. ВЕДОМОСТЬ РАБОЧИХ ЧЕРТЕЖЕЙ ОСНОВНОГО КОМПЛЕКТА

Лист Наименование
ЭОМ.ОД Общие данные
1 Схема электрическая однолинейная щита ЩР жилого дома
2 План розеточной сети 1 этажа
3 План розеточной сети 2 этажа
4 План сети освещения 1 этажа
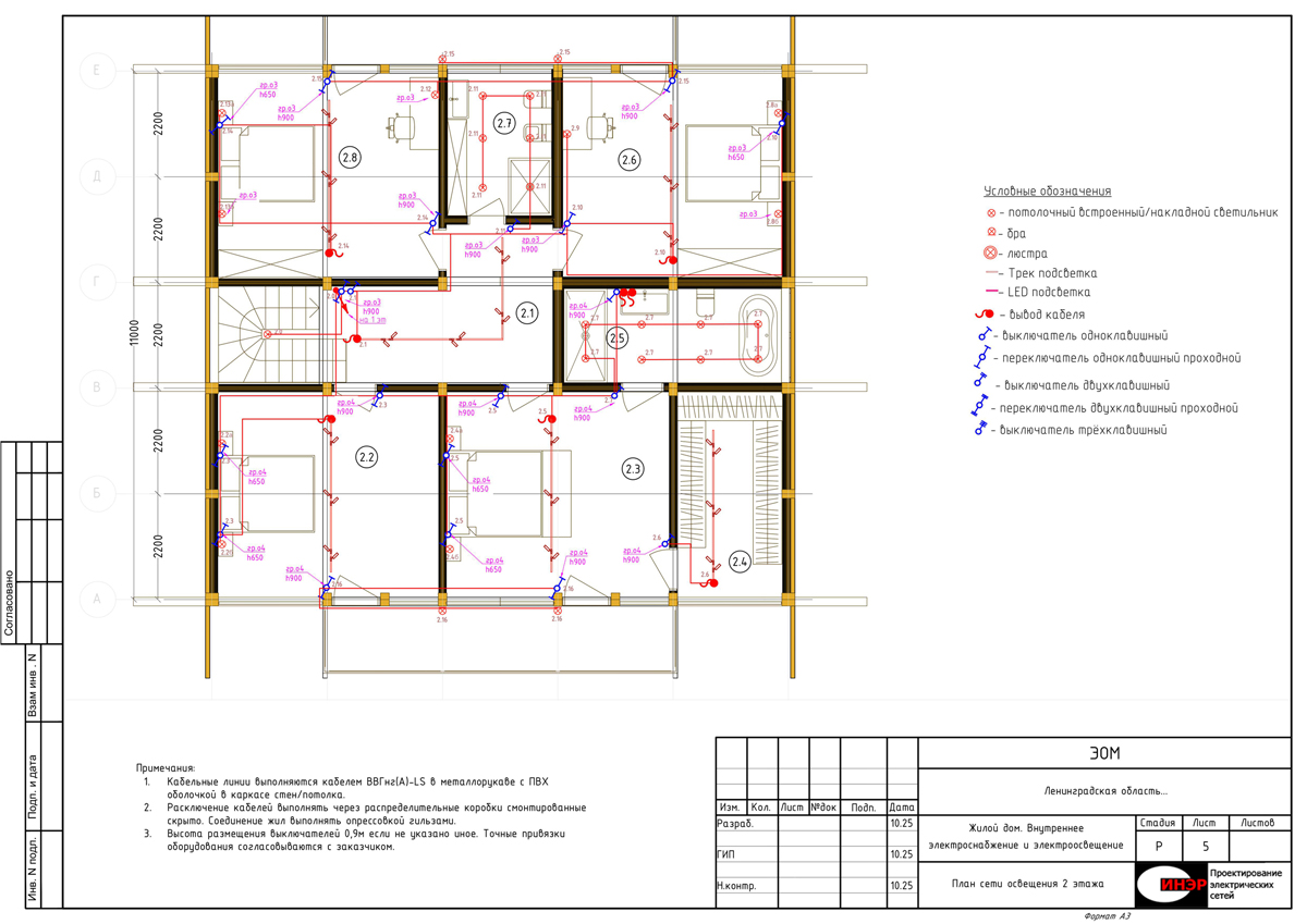
5 План сети освещения 2 этажа
6 План монтажа терморегуляторов 1 этажа
7 План монтажа терморегуляторов 2 этажа
8 Кабельный журнал
9 Схема системы заземления и уравнивания потенциалов

РАБОЧИЕ ЧЕРТЕЖИ ОСНОВНОГО КОМПЛЕКТА ЭЛЕКТРОСНАБЖЕНИЯ ЖИЛОГО ДОМА

Схема электрическая однолинейная щита ЩР жилого дома

Схема электрическая однолинейная щита ЩР жилого дома
Схема электрическая однолинейная щита ЩР жилого дома

План розеточной сети 1 этажа

План розеточной сети 1 этажа
План розеточной сети 1 этажа

План розеточной сети 2 этажа

План розеточной сети 2 этажа
План розеточной сети 2 этажа

План сети освещения 1 этажа

План сети освещения 1 этажа
План сети освещения 1 этажа

План сети освещения 2 этажа

План сети освещения 2 этажа
План сети освещения 2 этажа

План монтажа терморегуляторов 1 этажа

План монтажа терморегуляторов 1 этажа
План монтажа терморегуляторов 1 этажа

План монтажа терморегуляторов 2 этажа

План монтажа терморегуляторов 2 этажа
План монтажа терморегуляторов 2 этажа

Кабельный журнал

Кабельный журнал
Кабельный журнал
Кабельный журнал
Кабельный журнал (продолжение)
Кабельный журнал
Кабельный журнал (продолжение)

Схема системы заземления и уравнивания потенциалов

Схема системы заземления и уравнивания потенциалов
Схема системы заземления и уравнивания потенциалов

3. ВЕДОМОСТЬ ССЫЛОЧНЫХ И ПРИЛАГАЕМЫХ ДОКУМЕНТОВ

Обозначение Наименование
Ссылочные документы
ПУЭ, 7-е изд. Правила устройства электроустановок
ГОСТ 12.1.030-81 Электробезопасность. Защитное заземление, зануление
ГОСТ Р 12.1.019-2009 Электробезопасность. Общие требования
ГОСТ 21.1101-2013 Основные требования к проектной и рабочей документации
СНиП 31-05-2003 Общественные здания административного назначения
СНиП 31-06-2009 Общественные здания и сооружения
Прилагаемые документы
ЭОМ.СО Спецификация оборудования, изделий и материалов

Спецификация оборудования изделий и материалов

Спецификация оборудования изделий и материалов
Спецификация оборудования изделий и материалов
Спецификация оборудования изделий и материалов
Спецификация оборудования изделий и материалов (продолжение)
Спецификация оборудования изделий и материалов
Спецификация оборудования изделий и материалов (продолжение)

4. ОБЩИЕ УКАЗАНИЯ

Рабочая документация разработана на основании:

5. КРАТКАЯ ХАРАКТЕРИСТИКА ОБЪЕКТА

Здание жилого дома каркасное, двухэтажное.

6. ОСНОВНЫЕ ТЕХНИЧЕСКИЕ РЕШЕНИЯ

Электроснабжение

Точка присоединения в соответствии с выданным заданием на проектирование. Внешнее электроснабжение от ЩР до точки присоединения в проекте не рассматривается.

Расчетные параметры:

Основной источник питания: в соответствии с выданным заданием на проектирование.

Резервный источник питания: не предусматривается по заданию заказчика.

Учет электроэнергии

Учет электроэнергии выполняется на границе балансовой принадлежности и в проекте не рассматривается.

Распределительные и групповые сети

Для распределения электроэнергии принято:

Распределительный щит РЩ — металлический модульный навесной щит со степенью защиты IP41, с вводным автоматическим выключателем, УЗО и групповыми автоматическим выключателями, групповыми УЗО и АВДТ. Для оптимальной компоновки щита при необходимости защиты отходящих линий УЗО применено решение по установке по два групповых автоматических выключателей для одного УЗО.

Автоматические выключатели питающей и групповых сетей проверены на допустимое время отключения и предельную коммутационную способность при отключении токов КЗ.

Групповые сети выполнены кабелями с медными жилами типа ВВГнг(А)-LS расчетного сечения с изоляцией, не распространяющей горение.

Сечения кабелей принимаются по длительно допустимой токовой нагрузке, по потере напряжения и по величине срабатывания защиты при однофазных коротких замыканиях. Принятые марки кабелей и способы их прокладки соответствуют требованиям ГОСТ Р50571.15-97.

В местах прохода кабелей через стены должна обеспечиваться возможность смены электропроводки. Проход выполняется в металлорукаве в ПВХ оболочке.

Силовое электрооборудование

Силовые потребители питаются по отдельным линиям от щита РЩ.

К силовым электроприемникам относится оборудование, указанное в таблице расчета нагрузок.

Электроосвещение

На объекте предусматривается рабочее освещение.

Рабочее освещение помещений выполнено общим, преимущественно равномерным. Для освещения использованы светодиодные светильники, светодиодная лента. Управление освещением осуществляется с помощью выключателей по месту.

Качественные характеристики электроосвещения соответствуют СанПиН 2.2.1/2.1.1.1278.

Светильники выбираются в соответствии с характером помещений. Выбор освещенности помещений произведен на основании СанПиН 2.2.1/2.1.1.1278 «Гигиенические требования к естественному, искусственному и совмещенному освещению жилых и общественных зданий».

Заземление, защитные меры безопасности, молниезащита

В тех.помещении и санузлах необходимо выполнить дополнительную систему уравнивания потенциалов. Однофазные розетки должны иметь заземляющий контакт. При питании нескольких штепсельных розеток от одной групповой линии ответвления защитного проводника (РЕ) выполняется в ответвительных или установочных коробках пайкой, сваркой, опрессовкой и т.д. Последовательное включение в защитный проводник заземляющих контактов розеток не допускается. (п.п. 1.7.83, 1.7.139, 1.7.142, 1.7.144, 7.1.88 ПУЭ)

Противопожарные мероприятия

Пожарная безопасность обеспечивается следующими мероприятиями:

1. Выбор аппаратов защиты
Выбором аппаратов защиты электрических сетей от токов КЗ и перенапряжений с учетом действующих требований по обеспечению требуемого времени срабатывания и предельной коммутационной стойкости.

2. Сертификация оборудования
Все оборудование и материалы, используемые для данного технического решения имеют необходимые сертификаты безопасности.

3. Прокладка сетей
Прокладкой электрических сетей кабелями и проводами расчетного сечения, обеспечивающего длительную работу при расчетной нагрузке, с учетом аварийных режимов для резервируемых сетей, с изоляцией, не распространяющей горение.

С целью предотвращения распространения пожара в местах прохода кабелей через стены следует заделывать зазоры между проводами, кабелями и трубой, а также резервные трубы легко удаляемой массой из несгораемого материала. Заделка должна допускать замену, дополнительную прокладку новых проводов и кабелей.

Общие требования по производству работ

Внутреннюю проводку выполнить сменяемой. Кабели и провода проложить скрыто вдоль стен и потолка в металлорукаве в ПВХ оболочке, в техническом помещении прокладка выполняется открыто в металлорукаве в ПВХ оболочке. Металлорукав заземлить со стороны шкафа и в техническом помещении. Прокладку кабелей и проводов вести участками от щита РЩ к ответвительным коробкам, выключателям, светильникам, штепсельным розеткам, электроприемникам.

Все соединения кабелей и проводов выполнить в ответвительных коробках опрессовкой в гильзах. В местах соединений жил кабелей оставить запас, обеспечивающий возможность повторного присоединения. К местам соединений обеспечить доступ для осмотра и ремонта. В местах соединений кабели не должны испытывать механических усилий. Изоляцию соединений выполнить равноценной изоляции жил соединяемых проводов и кабелей.

Кабели и провода присоединить к устройствам следует после установки и закрепления устройств в рабочем положении.

Проход кабелей и проводов через стены выполнить в отрезках труб. На вводе в здание труба должна иметь уклон наружу, для предотвращения попадания влаги. В местах прохода кабелей и проводов через стены и перекрытия зазоры между кабелем и трубой (проемом) с каждой стороны стены заполнить легкоудаляемой массой из негорючего материала.

Однофазные розетки должны быть рассчитаны на ток 16А и иметь устройство, закрывающее гнезда при вынутой вилке.

Выключатели управления освещением установить на высоте, указанной на плане. К контактам выключателей управления освещением подключить фазный проводник.

При соединении светильников "в цепочку" у всех светильников, кроме концевых, установить ответвительные коробки.

Монтаж и подключение специального оборудования производится поставщиком, имеющим лицензию и отвечающим за качество установки данного оборудования.

Перечень видов скрытых работ, для которых необходимо составление актов

  1. Прокладка кабелей и проводов за обшивками стен и потолков.
  2. Монтаж скрытых распределительных коробок.

Организация эксплуатации электроустановок

Владелец индивидуального жилого дома должен пройти инструктаж.

Все бытовые приборы должны соответствовать ГОСТ 27570.0-87 «Безопасность бытовых и аналогичных электрических приборов. Общие требования и методы испытаний».

При срабатывании УЗО необходимо вызвать специалиста из энергоснабжающей организации для определения и устранения причин.

При срабатывании защитных автоматических выключателей в случае перегрузки необходимо отключить из розеток электроприемники и через некоторое время включить автомат.

Владельцу запрещается изменять самостоятельно электросхему, уставки защитных автоматов других номинальных данных без согласования с электроснабжающей организацией.

Измерение сопротивления изоляции, проверка целостности нулевых проводников и проверка работоспособности средств защиты должна выполняться в установленные сроки специалистами, имеющими специальную лицензию данной деятельности.

Расчетные данные

Ток однофазного короткого замыкания (КЗ) кабеля в удаленной точке, кА:

Расчет токов короткого замыкания

где: Uф - фазное напряжение, В; 0.8 - коэффициент снижения фазного напряжения, в связи с неясностью сопротивления цепи со стороны источника питания (трансформатора); 1.5 - коэффициент, учитывающий повышение сопротивления проводов при нагреве током КЗ; L - длина участка, м; Zуд - удельное сопротивление каждого из последовательно включенных участков цепи от точки подключения до точки КЗ, мОм/м.

Приводится расчет Iокз для наиболее удаленного электроприемника - освещения цок. эт. гр.8.

Результаты расчета приведены в таблице 1

Наименование параметра РЩ - точка КЗ
Сечение кабеля, мм² 2,5
Активное сопротивление линии, Ом × мм²/м 0,0175
Длина кабеля, м 220
Суммарное ZКЗ, Ом 115
Ток КЗ, кА 4,8
Номинал защитного устройства, А С10
Нормативное время срабатывания, с 0,4
Время срабатывания по время-токовой характеристике, с <0,1

Расчет потери напряжения

ΔU% = (P × L × 100) / (γ × Uл² × q)

где: Р - мощность присоединения, кВт; L - длина линии, км; γ - проводимость материала проводника (для меди 57.14 МСм×м); Uл - линейное напряжение питающей сети, кВ; q - сечение питающего проводника, мм.кв.

Параметр Значение (РЩ-потребитель гр.8)
Мощность присоединения, кВт 0,8
Длина линии, км 0,220
Проводимость материала проводника 57,14
Марка проводника ВВГнг(А)-LS
Сечение проводника 3×2,5
Потеря напряжения, % 2,3

Вывод: Потери напряжения не превышают нормируемых значений.

Расчет токов утечки

Формула расчета тока утечки

где: Iп - токи нагрузки защищаемых потребителей, А; Lс - длина фазных проводов защищаемой сети, м.

Результаты расчетов приведены в таблице 3

Таблица 3

Расчет токов утечки, результаты

Токи утечки не превышают 1/3 номинального значения защитных устройств.

Расчет электрических нагрузок

Решения по выбору электрооборудования выполнены на основании нагрузок, приведенных в таблице 4.

Расчет нагрузок выполнен в соответствии с СП256.1325800.2016

Таблица 4

Расчет нагрузок

где: Pуст - установленная мощность; Kс - коэффициент спроса; cosφ, tgφ - коэффициенты мощности; Pр, Qр и Sр - расчетные значения мощности активной, реактивной и полной соответственно; I - расчетное значение тока.

Все проекты